Cuisine & Entrée Famille Nombreuse – Anne & Jean-Baptiste (Région Parisienne)
Type de projet : Optimisation espaces familiaux
Modalité : Architecture d’intérieur à distance
Spécialité : Aménagement famille nombreuse neuroatypique
Contexte client : Couple avec 4 enfants, maison familiale qui manque de rangements et de fluidité pour la vie quotidienne
Problématiques famille nombreuse :
- Entrée en bazar constant : chaussures, sacs, manteaux partout
- Cuisine qui manque de plan de travail pour cuisiner
- Besoin que tous les enfants puissent manger ensemble
- Pas de rangements adaptés et on ne sait pas comment s’organiser
Process architecture d’intérieur à distance : J’ai proposé 3 scénarios d’aménagement détaillés pour permettre à la famille de choisir la solution la plus adaptée à leur mode de vie.
Solutions retenues :
✅ Entrée organisée avec rangements optimisés par profil familial
✅ Cuisine conviviale repensée pour famille nombreuse
✅ Espace repas permettant à tous de manger ensemble
✅ Circulation fluide qui allège la charge mentale parentale
Résultat : Un bel exemple de design d’intérieur fonctionnel et bien-être adapté aux besoins d’une famille nombreuse, réalisé entièrement à distance.
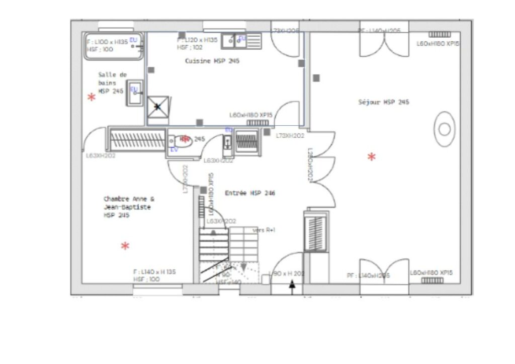
Le plan de départ

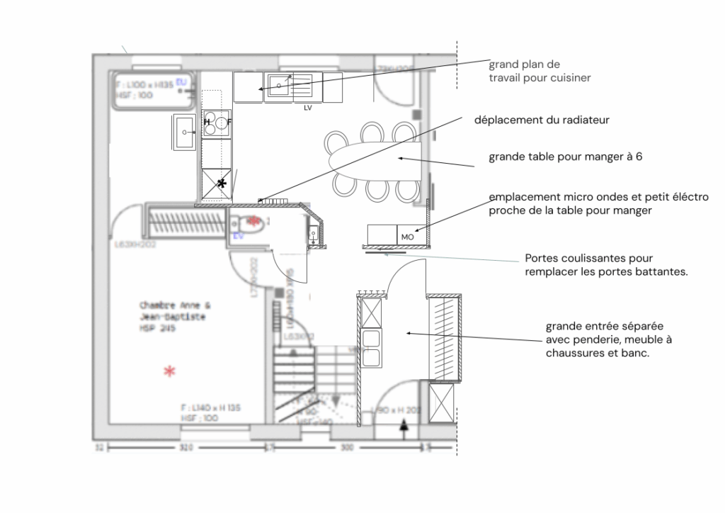
La première proposition

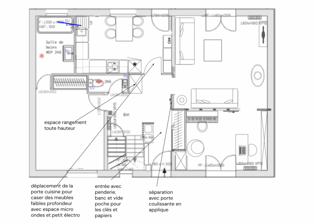
La seconde proposition

La troisième proposition

Pourquoi choisir mon expertise d'architecte d'intérieur ?
🎯 Une approche unique en région toulousaine et à distance.
- Architecture d'intérieur spécialisée neuroatypie : Je comprends les défis sensoriels
- Quadruple expertise : Optimisation d’espace + Neuro-architecture + Psychologie de l'habitat + Psychologie des couleurs
- Accompagnement personnalisé : De l'optimisation d'une pièce pour vos besoins sensoriels, à la rénovation complète
- Flexibilité géographique : Présentiel Toulouse/Haute-Garonne + visio France entière
📍 Zone d’intervention architecte d’intérieur
En présentiel : Toulouse, Colomiers, Tournefeuille, Blagnac, L’Union, Balma, La Salvetat-Saint-Gilles et toute la région toulousaine.
À distance : Partout en France via consultations visio pour optimisation d’espace, psychologie de l’habitat et neuro-architecture.
Vous reconnaissez-vous dans ces transformations ?
🏠 Votre projet d’architecture d’intérieur vous attend
Que ce soit pour :
- Rénovation complète avec approche bien-être
- Optimisation d’espaces petits ou mal agencés
- Aménagement familial adapté aux besoins neuroatypiques
- Harmonisation psychologie de l’habitat de votre intérieur existant
Je vous accompagne avec la même attention et expertise que pour chacun de ces projets.
Prêt(e) à transformer votre intérieur en allié du quotidien ?