
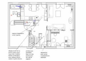
Des espaces pensés pour la Vraie Vie. Pas pour les magazines déco.
Ici tu ne verras pas que des jolies photos.
Tu verras des projets où chaque décision a été pensée pour simplifier le quotidien, alléger la charge mentale, et faire avancer un projet de manière concrète.


